91100 Corbeil-Essonnes
APPARTEMENT TYPE 4
APPARTEMENT TYPE 4
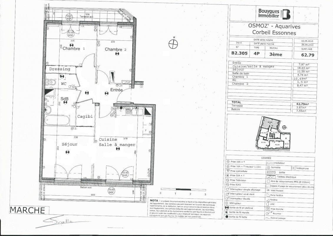
APPARTEMENT CONFORTABLE BIEN ORIENTE , ENSOLEILLE , QUARTIER CALME. PLAN JOINT . ACHETE 180 000 € LE 06/12/2012 A BOUYGUES . PARKING SOUS-SOL SECURISE. ASCENSEUR . SURFACE HABITABLE : 62,79 . CUISINE EQUIPEE . TERRASSE : 3,87 . BALCON 7,55 . TOTAL 74,21 .
5 RUE JEAN PIESTRE CORBEIL ESSONNES . LIBRE . VALEUR LOCATIVE 950 € .
5 RUE JEAN PIESTRE CORBEIL ESSONNES . LIBRE . VALEUR LOCATIVE 950 € .
175 000 €
63 m²
Code Postal
91100
Ville
Corbeil-Essonnes
Type de bien
Appartement
GES
En cours
Classe énergie
En cours
Mise en ligne
12 novembre 2025
Nombre de vues
450