95460 Ézanville
F3 à rénover
F3 à rénover
A 10 minutes à pied de la gare de Domont. Arrêt de bus au pied de l'immeuble.
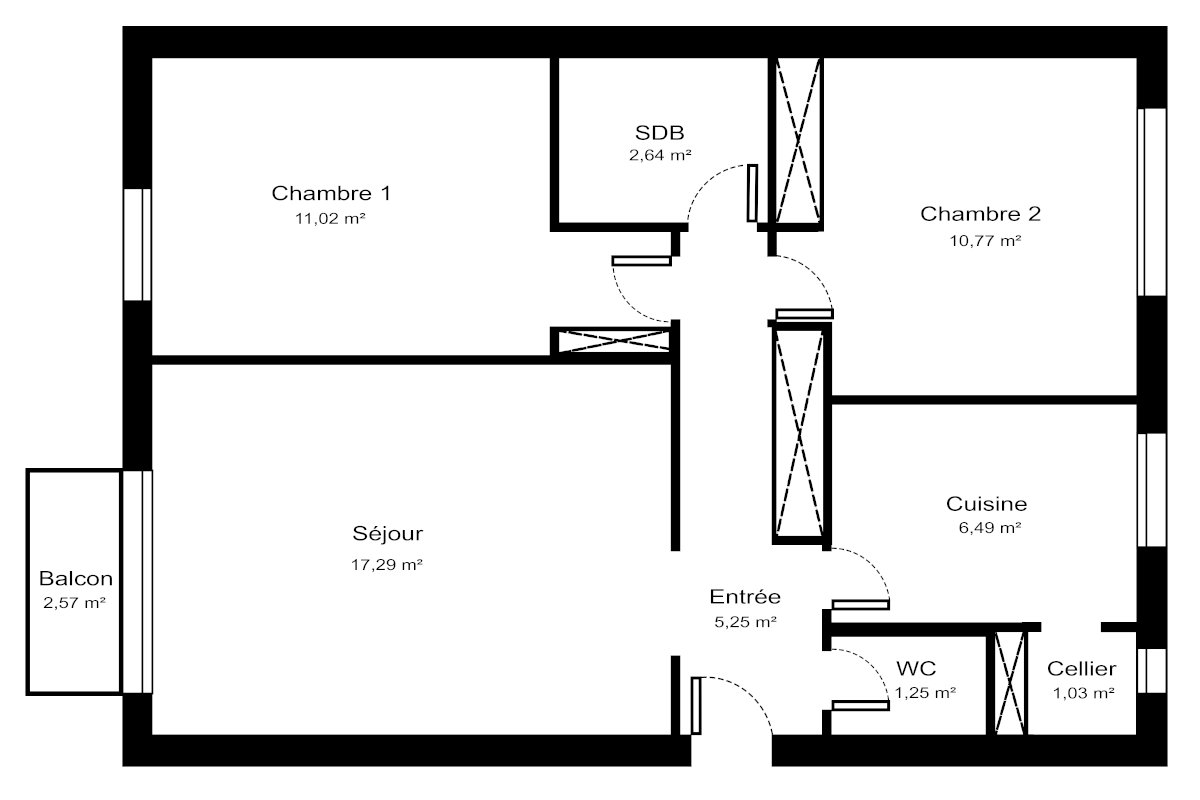
Résidence calme et sécurisée avec espaces verts. Situé au premier étage, appartement de 3 pièces traversant qui se compose d'une entrée avec placard, séjour avec balcon exposé sud, cuisine indépendante, cellier, deux chambres avec placards, salle de bains et WC indépendants.
Stationnement aisé dans la résidence.
Cave.
Charges de copropriété : 239 euros/ mois au 1er janvier 2024, fond de travaux compris. Chauffage et eau chaude compris.
Impôts fonciers 2023 : 908 euros.
Copropriété de 48 lots d'habitation. Pas de procédure en cours.
Travaux de rafraichissements à prévoir.
Proche de la D301 en voiture (ancienne RN1).
Ecole primaire et collège à proximité. Lycée à Domont.
Au pied de la future zone commerciale du Val d'Ezanville actuellement en réhabilitation.
DPE réalisé le 30 janvier 2023
Classe énergie : F
Consommation énergie primaire : 271 kWh/m²/an
Consommation énergie finale : 264 kWh/m²/an
GES : F
84 kg CO2/m²/an
Résidence calme et sécurisée avec espaces verts. Situé au premier étage, appartement de 3 pièces traversant qui se compose d'une entrée avec placard, séjour avec balcon exposé sud, cuisine indépendante, cellier, deux chambres avec placards, salle de bains et WC indépendants.
Stationnement aisé dans la résidence.
Cave.
Charges de copropriété : 239 euros/ mois au 1er janvier 2024, fond de travaux compris. Chauffage et eau chaude compris.
Impôts fonciers 2023 : 908 euros.
Copropriété de 48 lots d'habitation. Pas de procédure en cours.
Travaux de rafraichissements à prévoir.
Proche de la D301 en voiture (ancienne RN1).
Ecole primaire et collège à proximité. Lycée à Domont.
Au pied de la future zone commerciale du Val d'Ezanville actuellement en réhabilitation.
DPE réalisé le 30 janvier 2023
Classe énergie : F
Consommation énergie primaire : 271 kWh/m²/an
Consommation énergie finale : 264 kWh/m²/an
GES : F
84 kg CO2/m²/an
149 000 €
57 m²
Code Postal
95460
Ville
Ézanville
Type de bien
Appartement
GES
F
Classe énergie
F
Mise en ligne
7 février 2026
Nombre de vues
1 822