92000 Nanterre
Nanterre | Appartement de 89 m² + 2 places de parking + 51 m² de jardin privatif
Nanterre | Appartement de 89 m² + 2 places de parking + 51 m² de jardin privatif
TRÈS RARE SUR LE MARCHÉ !
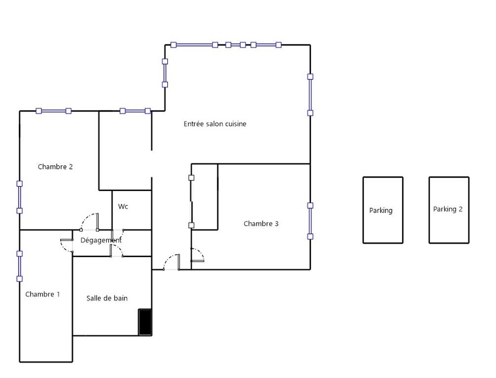
Appartement 4 pièces - 88,62 m² (loi Carrez) + 51 m² d'extérieur attenant et privatif.
92000 – NANTERRE – Écoquartier Chemin de l'Ile – Appartement familial au RDC, 4 PIECES, 3 CHAMBRES, 2 PLACES DE PARKING, TERRASSE ET JARDIN, ce BEL APPARTEMENT FAMILIAL NEUF a était CONSTRUIT en 2020 et disposant d'un intérieur complètement SANS VIS-A-VIS grâce à la pose de film miroir occultant sur toutes les fenêtres.
Il se compose d'une entrée donnant accès à un PLACARD INTÉGRÉ, SEJOUR – SALLE À MANGER avec sa CUISINE ÉQUIPÉE de 39 m², profitant d'une grande baie vitrée et ouvrant sur la TERRASSE de 11 m² et JARDIN de 30 m² avec potager et une vue imprenable sur la promenade de la Seine.
L'espace nuit qui se compose de TROIS BELLES CHAMBRES (15 / 11 / 12 m²), d'une SALLE DE BAIN avec BAIGNOIRE, DOUBLE VASQUE, WC (5 m²) et d'un WC séparé (1,34 m²).
- Menuiseries en double vitrage PVC ;
- Volets roulants électriques PVC sur le salon ;
- Volets roulants manuels PVC dans les autres pièces ;
- 2 Places de parking en sous-sol, porte de garage électrique ;
- Promenade de la Seine à 50m ;
- Parc du Chemin de L'ile à 50m ;
- Arrêt de bus 157 (Nanterre – Boulevard de la Seine / Pont de Neuilly) à 20m ;
- Ecoles maternelles, primaires et Collège à 450m ;
- CARREFOUR MARKET à 650m ;
- Marché de la gare de Nanterre à 700m ;
- RER Nanterre Ville (RER A) à 950m ;
- Arrêt de bus Noctilien N153 (Paris Saint Lazare) à 950m ;
- Lycée Paul Langevin à 6mn en voiture ;
- Accès A86 à 3mn en voiture.
Les charges de l'appartement comprennent le syndic, les espaces verts, le nettoyage et l'assurance des parties communes, l'entretien de la VMC, porte garage et toiture.
Chauffage au gaz, relevé d'eau et électricité individuel.
DPE: C.
GES: C.
Nombre de lots : 17.
Charges prévisionnelles : 280 € / mois.
Pas de procédure en cours.
Appartement 4 pièces - 88,62 m² (loi Carrez) + 51 m² d'extérieur attenant et privatif.
92000 – NANTERRE – Écoquartier Chemin de l'Ile – Appartement familial au RDC, 4 PIECES, 3 CHAMBRES, 2 PLACES DE PARKING, TERRASSE ET JARDIN, ce BEL APPARTEMENT FAMILIAL NEUF a était CONSTRUIT en 2020 et disposant d'un intérieur complètement SANS VIS-A-VIS grâce à la pose de film miroir occultant sur toutes les fenêtres.
Il se compose d'une entrée donnant accès à un PLACARD INTÉGRÉ, SEJOUR – SALLE À MANGER avec sa CUISINE ÉQUIPÉE de 39 m², profitant d'une grande baie vitrée et ouvrant sur la TERRASSE de 11 m² et JARDIN de 30 m² avec potager et une vue imprenable sur la promenade de la Seine.
L'espace nuit qui se compose de TROIS BELLES CHAMBRES (15 / 11 / 12 m²), d'une SALLE DE BAIN avec BAIGNOIRE, DOUBLE VASQUE, WC (5 m²) et d'un WC séparé (1,34 m²).
- Menuiseries en double vitrage PVC ;
- Volets roulants électriques PVC sur le salon ;
- Volets roulants manuels PVC dans les autres pièces ;
- 2 Places de parking en sous-sol, porte de garage électrique ;
- Promenade de la Seine à 50m ;
- Parc du Chemin de L'ile à 50m ;
- Arrêt de bus 157 (Nanterre – Boulevard de la Seine / Pont de Neuilly) à 20m ;
- Ecoles maternelles, primaires et Collège à 450m ;
- CARREFOUR MARKET à 650m ;
- Marché de la gare de Nanterre à 700m ;
- RER Nanterre Ville (RER A) à 950m ;
- Arrêt de bus Noctilien N153 (Paris Saint Lazare) à 950m ;
- Lycée Paul Langevin à 6mn en voiture ;
- Accès A86 à 3mn en voiture.
Les charges de l'appartement comprennent le syndic, les espaces verts, le nettoyage et l'assurance des parties communes, l'entretien de la VMC, porte garage et toiture.
Chauffage au gaz, relevé d'eau et électricité individuel.
DPE: C.
GES: C.
Nombre de lots : 17.
Charges prévisionnelles : 280 € / mois.
Pas de procédure en cours.
445 000 €
89 m²
Code Postal
92000
Ville
Nanterre
Type de bien
Appartement
GES
C
Classe énergie
C
Mise en ligne
23 novembre 2025
Nombre de vues
2 712