94000 Créteil
Grand Appartement Créteil Lac - Proche CCR zone piétonne
Grand Appartement Créteil Lac - Proche CCR zone piétonne
SEULE UNE VISITE VOUS PERMETTRA D’APPRECIER LES ATOUTS DE CE BIEN D’EXCEPTION
A Créteil, entre le Lac et le CCR Créteil Soleil dans résidence de standing avec gardiens, grand appartement (157m2 Carrez - 171 m2 pondérés) orienté S-SO, très lumineux et sans vis à vis avec une magnifique vue sur le Lac, la Préfecture du Val de Marne et Paris (Tour Eiffel, Sacré Cœur)
Situé sur la dalle piétonne (Vasarely) de l'hôtel de ville, la résidence "Les Philippines T3" est accessible aux poussettes, PMR…directement depuis le métro et le Centre Commercial.
L'appartement est au 11ème étage et dispose d’un interphone. La résidence est dotée de trois ascenseurs qui desservent les 18 étages d'habitation et trois étages de parkings.
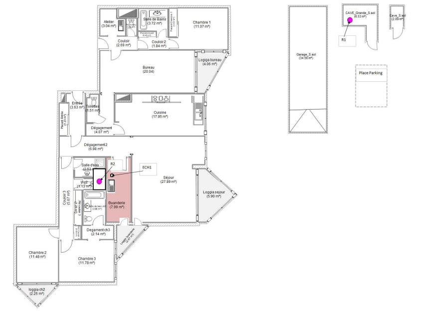
Doté de deux entrées palières, cet appartement peut parfaitement répondre aux usages d'une profession libérale; il est aussi envisageable de séparer l'ensemble en deux lots, soit un appartement de trois pièces et un de deux pièces. (Voir plan joint)
Composé d'un espace de vie de près de 30 m² prolongé d’un bow-window, d'une suite parentale avec salle de bains WC et loggia, de deux chambres et d'un bureau (20m2). Il dispose d'une très grande cuisine de18 m² entièrement meublée et équipée ; une autre salle de bains, une salle de douche et trois sanitaires, une "buanderie" et un coin "atelier" complètent ce bien.
Dans les couloirs et une chambre de nombreux rangements dans 10 m de placards de 2.50m de haut.
Trois loggias et un bow-window illuminent les diverses pièces. Chaque fenêtre est dotée de volets occultants dont certains électriques. La résidence est équipée de colonnes VO (vides ordures) et de locaux pour le tri sélectif.
Un box double avec fermeture par porte séquentielle électrique et une place de stationnement, dans parking collectif.
Entrée des voitures sécurisée par télécommande par la rue de la France Libre. Accès direct à l'appartement par ascenseurs depuis les parkings sécurisés par système "Vigik"
Ce lot est complété par deux caves, situées au même niveau que les parkings.
La résidence est également dotée d'un local vélo avec accès sur la rue de la France libre.
A proximité vous trouverez :
Transports en commun : à 7 mn métro ligne 8 (station Créteil Préfecture), plusieurs lignes de bus...
Education : écoles maternelle et primaire à 200 m sans traverser la rue, collèges, lycées et université
Commerces : à 50 m à pied le Centre Commercial Créteil Soleil, Composé de 270 enseignes dont un hypermarché Carrefour, la FNAC, 57 restaurants, boulangeries, banques, assurances, entretiens véhicules...
Marchés à moins de 15 mn à pied les mardi, vendredi et dimanche à Créteil Village.
Santé : Centres médicaux, pharmacies et hôpitaux dont un CHU accessibles en quelques minutes.
Loisirs et parcs : L’ île de loisirs, avec plan d’eau de 42 ha, piscine, base nautique, accrobranche, jeux, parcours santé, maison de la nature, rucher , etc.… est aux pieds de la résidence.
Culture : La Maison des Arts et de la Culture André Malraux à 100 mètres .
18 salles de cinémas, Laser Game, salle de sport dans le CCR
Le DPE vient d’être réalisé :- consommation énergie primaire : 139 kWh/m2/an. Classe C
Reliée au réseau de chauffage urbain de Créteil à base de géothermie, le coût du chauffage et de la distribution d'eau chaude de la résidence est intégré dans les charges de copropriété.
SEULE UNE VISITE VOUS PERMETTRA D’APPRECIER LES ATOUTS DE CE BIEN D’EXCEPTION
A Créteil, entre le Lac et le CCR Créteil Soleil dans résidence de standing avec gardiens, grand appartement (157m2 Carrez - 171 m2 pondérés) orienté S-SO, très lumineux et sans vis à vis avec une magnifique vue sur le Lac, la Préfecture du Val de Marne et Paris (Tour Eiffel, Sacré Cœur)
Situé sur la dalle piétonne (Vasarely) de l'hôtel de ville, la résidence "Les Philippines T3" est accessible aux poussettes, PMR…directement depuis le métro et le Centre Commercial.
L'appartement est au 11ème étage et dispose d’un interphone. La résidence est dotée de trois ascenseurs qui desservent les 18 étages d'habitation et trois étages de parkings.
Doté de deux entrées palières, cet appartement peut parfaitement répondre aux usages d'une profession libérale; il est aussi envisageable de séparer l'ensemble en deux lots, soit un appartement de trois pièces et un de deux pièces. (Voir plan joint)
Composé d'un espace de vie de près de 30 m² prolongé d’un bow-window, d'une suite parentale avec salle de bains WC et loggia, de deux chambres et d'un bureau (20m2). Il dispose d'une très grande cuisine de18 m² entièrement meublée et équipée ; une autre salle de bains, une salle de douche et trois sanitaires, une "buanderie" et un coin "atelier" complètent ce bien.
Dans les couloirs et une chambre de nombreux rangements dans 10 m de placards de 2.50m de haut.
Trois loggias et un bow-window illuminent les diverses pièces. Chaque fenêtre est dotée de volets occultants dont certains électriques. La résidence est équipée de colonnes VO (vides ordures) et de locaux pour le tri sélectif.
Un box double avec fermeture par porte séquentielle électrique et une place de stationnement, dans parking collectif.
Entrée des voitures sécurisée par télécommande par la rue de la France Libre. Accès direct à l'appartement par ascenseurs depuis les parkings sécurisés par système "Vigik"
Ce lot est complété par deux caves, situées au même niveau que les parkings.
La résidence est également dotée d'un local vélo avec accès sur la rue de la France libre.
A proximité vous trouverez :
Transports en commun : à 7 mn métro ligne 8 (station Créteil Préfecture), plusieurs lignes de bus...
Education : écoles maternelle et primaire à 200 m sans traverser la rue, collèges, lycées et université
Commerces : à 50 m à pied le Centre Commercial Créteil Soleil, Composé de 270 enseignes dont un hypermarché Carrefour, la FNAC, 57 restaurants, boulangeries, banques, assurances, entretiens véhicules...
Marchés à moins de 15 mn à pied les mardi, vendredi et dimanche à Créteil Village.
Santé : Centres médicaux, pharmacies et hôpitaux dont un CHU accessibles en quelques minutes.
Loisirs et parcs : L’ île de loisirs, avec plan d’eau de 42 ha, piscine, base nautique, accrobranche, jeux, parcours santé, maison de la nature, rucher , etc.… est aux pieds de la résidence.
Culture : La Maison des Arts et de la Culture André Malraux à 100 mètres .
18 salles de cinémas, Laser Game, salle de sport dans le CCR
Le DPE vient d’être réalisé :- consommation énergie primaire : 139 kWh/m2/an. Classe C
Reliée au réseau de chauffage urbain de Créteil à base de géothermie, le coût du chauffage et de la distribution d'eau chaude de la résidence est intégré dans les charges de copropriété.
SEULE UNE VISITE VOUS PERMETTRA D’APPRECIER LES ATOUTS DE CE BIEN D’EXCEPTION
580 000 €
157 m²
Code Postal
94000
Ville
Créteil
Type de bien
Appartement
GES
A
Classe énergie
C
Mise en ligne
25 novembre 2025
Nombre de vues
1 709