78780 Maurecourt
Maison : Duplex T4 de caractère pour Habitation/Libéral libre + Murs loués. Rente minimum indexée de 605/mois. Potentiel de plus 2000€/mois
Maison : Duplex T4 de caractère pour Habitation/Libéral libre + Murs loués. Rente minimum indexée de 605/mois. Potentiel de plus 2000€/mois
Maison de ville au cœur du village, comprenant :
> Un Duplex de charme de 4 pièces ensoleillées, libre, pour habiter/travailler
> Des Murs commerciaux loués, permettant éventuellement de s'y installer en fin de bail.
> Une Rente indexée actuelle minimum de 605€/mois confortant vos revenus/financement/retraite avec fort potentiel d'augmentation.
- Revenus locatifs potentiel si location totale avec Duplex de 1705€ minimum à plus de 2000€/mois
- Pas de copropriété donc ni soucis ni charges de copropriété
- Pas de jardin à entretenir mais un bel espace extérieur clos, de terrasse aménagé, prolongeant votre habitation toute l’année (serre possible autorisée par mairie).
- Acte de vente possible jusqu’à fin 2025
Surface totale déployée du bien d’environ 120 m2 = 98 m2 utiles + 14 m2 sous 1,80 m dont rangements + 7m2 d’espace visuel vide devant mezzanine. Terrasse de 13m2.
- Au 1er étage, un Duplex T4 indépendant, servant d’habitation et cabinet libéral, avec cheminée et parquets anciens, mezzanine, terrasse est/ouest, attenante, aménagée au calme. PAC air/air réversible climatisation.
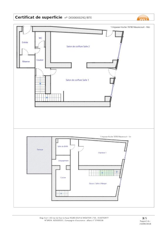
- En rdc, Murs commerciaux, loués, avec 2 entrées séparées, 2 salles de coiffure, buanderie, wc. Loyer du commerce, 548€/mois indexé.
- 13 panneaux photovoltaïques : Revente à EDF pour 684€/an
Toutes commodités sur place. À 10 mn du RER, 35 mn de la défense. À quelques minutes à pied d’une nature exceptionnelle.
Descriptif général
- Maison mitoyenne d’un côté, sur une parcelle de terrain de 69 m2 totalement bâtie.
- Entièrement rénovée en 2010. Toiture révisée fin 2023. Murs de 50 cm d’épaisseur en pierres avec isolation intérieure.
- Bâtiment économe, DPE classé D sans tenir compte des équipements énergétiques dont vous n’aurez plus les soucis de réalisation :
Chauffage/climatisation par pompe à chaleur PAC air/air réversible Daikin.
13 panneaux solaires plein sud après déplacement des 2 vélux au nord pour optimisation.
- Cheminée ancienne aménageable en insert à granulés.
- Terrasse aménagée de 13 m2.
- Filtration CARTIS à charbon actif argenté pour une eau de table de qualité à domicile.
- Proche toutes commodités, commerces, écoles, gare - Visibilité idéal pour libéral.
- Pas de parking privé taxé mais deux parkings publics gratuits à 1mn et 3mn à pied.
- Accès rapide sans voiture à La Défense en 35 mn ou à la Gare St Lazare en 42mn, par gares de Conflans Fin d’Oise à 14mn par bus ou 20 mn à pied. Gare SNCF à 15mn à pied.
- Pour se ressourcer, entre 5 et 15mn à pied : Campagne - Rivière - Coteaux boisés - Forêt domaniale sur colline de l’Hautil dominant la forêt de St Germain-en-Laye jusqu’à La défense.
Détails habitation en Duplex
Surface totale déployée de plus de 80 m2 soit : Surface utile de 60 m2 + surface plancher sous 1,80m de 14m2 dont rangements + espace visuel (vide) devant mezzanine de 7m2 exploitable. Terrasse de 13m2
- Entrée partagée en rez-de-chaussée par impasse sur hall, donnant sur porte vers couloir et escalier privé vers duplex ...
- Au 1er étage : Entrée sur séjour/salle à manger avec cheminée et parquets anciens, accès vers cuisine équipée avec bar ouvert sur séjour, accès terrasse aménagée au calme, exposée est-ouest (possibilité de serre autorisée par mairie), couloir donnant vers bureau professionnel (ou chambre) avec plafond cathédrale par vide mezzanine, salle de bains/wc/buanderie.
- Accès par séjour au 2e étage mansardé, avec parquet et poutres apparentes, vers salon (ou chambre), communicant vers chambre (ou bureau) en mezzanine, avec espace visuel du vide devant mezzanine exploitable, ouvert sur bureau. Grands rangements en sous-pentes.
- Taxe foncière 2024 : 902,80€
- Bilan énergétique
Coût annuel d'énergie (année de référence 2021) :
Minimum : 580€ / an
Maximum : 830€ / an
Détails Murs commerciaux.
Surfaces privative de 38m2 loué 548€/mois à un salon de coiffure.
Vitrines/entrée sur centre-ville, vers 1e salle de 17,50 m2 avec accueil et vestiaire, ouvert sur 2e salle de 17m2 avec sortie secondaire sur impasse. Accès arrière vers wc, réserve/buanderie, emplacement poubelle et impasse.
- Bail 3/6/9 jusqu’au 01/10/30
- Taxe foncière 2024 : 416,20€
> Un Duplex de charme de 4 pièces ensoleillées, libre, pour habiter/travailler
> Des Murs commerciaux loués, permettant éventuellement de s'y installer en fin de bail.
> Une Rente indexée actuelle minimum de 605€/mois confortant vos revenus/financement/retraite avec fort potentiel d'augmentation.
- Revenus locatifs potentiel si location totale avec Duplex de 1705€ minimum à plus de 2000€/mois
- Pas de copropriété donc ni soucis ni charges de copropriété
- Pas de jardin à entretenir mais un bel espace extérieur clos, de terrasse aménagé, prolongeant votre habitation toute l’année (serre possible autorisée par mairie).
- Acte de vente possible jusqu’à fin 2025
Surface totale déployée du bien d’environ 120 m2 = 98 m2 utiles + 14 m2 sous 1,80 m dont rangements + 7m2 d’espace visuel vide devant mezzanine. Terrasse de 13m2.
- Au 1er étage, un Duplex T4 indépendant, servant d’habitation et cabinet libéral, avec cheminée et parquets anciens, mezzanine, terrasse est/ouest, attenante, aménagée au calme. PAC air/air réversible climatisation.
- En rdc, Murs commerciaux, loués, avec 2 entrées séparées, 2 salles de coiffure, buanderie, wc. Loyer du commerce, 548€/mois indexé.
- 13 panneaux photovoltaïques : Revente à EDF pour 684€/an
Toutes commodités sur place. À 10 mn du RER, 35 mn de la défense. À quelques minutes à pied d’une nature exceptionnelle.
Descriptif général
- Maison mitoyenne d’un côté, sur une parcelle de terrain de 69 m2 totalement bâtie.
- Entièrement rénovée en 2010. Toiture révisée fin 2023. Murs de 50 cm d’épaisseur en pierres avec isolation intérieure.
- Bâtiment économe, DPE classé D sans tenir compte des équipements énergétiques dont vous n’aurez plus les soucis de réalisation :
Chauffage/climatisation par pompe à chaleur PAC air/air réversible Daikin.
13 panneaux solaires plein sud après déplacement des 2 vélux au nord pour optimisation.
- Cheminée ancienne aménageable en insert à granulés.
- Terrasse aménagée de 13 m2.
- Filtration CARTIS à charbon actif argenté pour une eau de table de qualité à domicile.
- Proche toutes commodités, commerces, écoles, gare - Visibilité idéal pour libéral.
- Pas de parking privé taxé mais deux parkings publics gratuits à 1mn et 3mn à pied.
- Accès rapide sans voiture à La Défense en 35 mn ou à la Gare St Lazare en 42mn, par gares de Conflans Fin d’Oise à 14mn par bus ou 20 mn à pied. Gare SNCF à 15mn à pied.
- Pour se ressourcer, entre 5 et 15mn à pied : Campagne - Rivière - Coteaux boisés - Forêt domaniale sur colline de l’Hautil dominant la forêt de St Germain-en-Laye jusqu’à La défense.
Détails habitation en Duplex
Surface totale déployée de plus de 80 m2 soit : Surface utile de 60 m2 + surface plancher sous 1,80m de 14m2 dont rangements + espace visuel (vide) devant mezzanine de 7m2 exploitable. Terrasse de 13m2
- Entrée partagée en rez-de-chaussée par impasse sur hall, donnant sur porte vers couloir et escalier privé vers duplex ...
- Au 1er étage : Entrée sur séjour/salle à manger avec cheminée et parquets anciens, accès vers cuisine équipée avec bar ouvert sur séjour, accès terrasse aménagée au calme, exposée est-ouest (possibilité de serre autorisée par mairie), couloir donnant vers bureau professionnel (ou chambre) avec plafond cathédrale par vide mezzanine, salle de bains/wc/buanderie.
- Accès par séjour au 2e étage mansardé, avec parquet et poutres apparentes, vers salon (ou chambre), communicant vers chambre (ou bureau) en mezzanine, avec espace visuel du vide devant mezzanine exploitable, ouvert sur bureau. Grands rangements en sous-pentes.
- Taxe foncière 2024 : 902,80€
- Bilan énergétique
Coût annuel d'énergie (année de référence 2021) :
Minimum : 580€ / an
Maximum : 830€ / an
Détails Murs commerciaux.
Surfaces privative de 38m2 loué 548€/mois à un salon de coiffure.
Vitrines/entrée sur centre-ville, vers 1e salle de 17,50 m2 avec accueil et vestiaire, ouvert sur 2e salle de 17m2 avec sortie secondaire sur impasse. Accès arrière vers wc, réserve/buanderie, emplacement poubelle et impasse.
- Bail 3/6/9 jusqu’au 01/10/30
- Taxe foncière 2024 : 416,20€
385 000 €
98 m²
Code Postal
78780
Ville
Maurecourt
Type de bien
Maison
GES
A
Classe énergie
D
Mise en ligne
15 décembre 2025
Nombre de vues
2 058